Saronida: Land plot 658 sqm
Sell Featured
Saronida
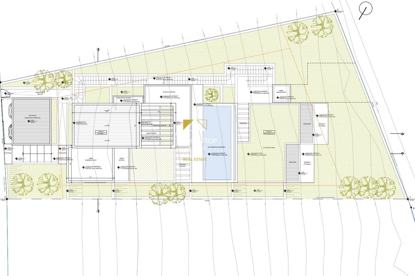
For sale: a 658 sq.m. corner plot, fully excavated, with a transferable building permit for a complex of three residences (two buildings), located in a prime area of Panorama Saronidas, free of neighboring structures and offering unlimited sea views.
The plot is within the city plan, fully legal and buildable, with frontage on two streets.
The building permit includes a main residence of 312 sq.m. with a swimming pool, two independent guesthouses of 47 sq.m. each with access from the lower side of the plot, and an underground garage with two open parking spaces.
The main residence offers two alternative layouts: in the first, there are four bedrooms, including a master; in the second, there are two large upper-floor suites with ensuite bathrooms, one of which features a walk-in wardrobe and a laundry/dryer area. The interior design includes a spacious kitchen with an island, dining area, living room, WC, storage/pantry, and an outdoor barbecue area, while the large basement can accommodate a gym and additional storage. A key advantage is the ability to connect to the water supply without the need for a pump.
The plot comes with full architectural, structural, and construction plans, a coverage diagram, landscape studies, and electromechanical studies, with an architect and engineer available to complete the construction. Construction works began before the new building regulations (December 2024), so the permit remains valid without any need for revision.
Situated on sloping, amphitheatrical terrain, the plot offers unobstructed and limitless sea views.
The location is also exceptionally quiet, with easy access to the center of Saronidas and nearby beaches.
The completed preliminary works combined with the valid building permit make this plot ideal for a private buyer or investor looking to start construction immediately in a prime location.
Amenities
-
View

